JAcobus 12 Kwadraat vrijstaand tunnel
De JAcobus 12 Kwadraat vrijstaand tunnel is, net zoals de rest van de JAcobus kachels, een strak model dat goed tot zijn recht komt in een moderne woning. Met strakke lijnen, geavanceerde technologie en ongeëvenaarde efficiëntie, zal deze haard uw verwachtingen van warmte en sfeer in huis overtreffen. Houdt u meer van een robuuste uitstraling? Dan kunt u ook voor de betonnen variant kiezen.
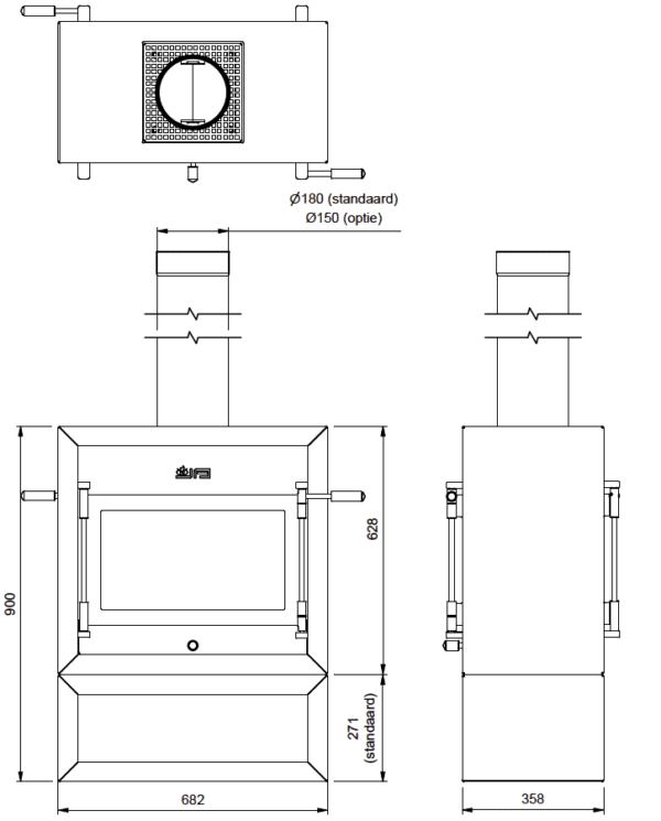
De hoogte van de kachel wordt bepaald door het onderstel. Deze heeft standaard een hoogte van 90 cm en is als maatwerk in iedere afmeting verkrijgbaar. Dat geldt voor zowel de hoogte als de breedte, het onderstel kan dus ook breder dan de kachel worden geleverd waardoor er een soort plateau wordt gecreëerd. De mogelijkheden zijn eindeloos bij de Kwadraat serie!








